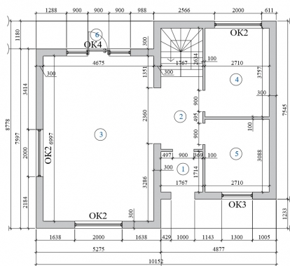
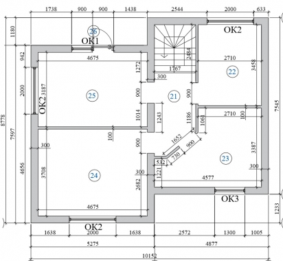
Дом "Симпл" - 150 м2
! Возможна перепланировка и изменение габаритов
- Дом "Симпл" представлен в варианте строительства из блоков с оштукатуренным фасадом.
- Общая площадь - 150 м2.
- Жилая площадь - 109 м2.
Стоимость строительства:
| Из СИП-панелей | |
| Каркасная технология | |
| Из каменных блоков (керамзитобетон, газобетон) |
Оставляйте заявку на получение подробной сметы:
Подразделы
- 100м2 - Гало (1 этаж)
- 120 м2 - Добрый
- 127 м2 - Радуга
- 130м2 - 1эт, Берн
- 130м2 - Крепыш
- 150м2 - Симпл
- 150м2 - Энэс
- 160м2 - Астра
- 160м2 - Индастриал
- 165м2 - Лотос
- 165м2 - На Оке
- 165м2 - Фламенко
- 170м2 - Кэжл
- 170м2 - Токи
- 170 м2 - Эвритания
- 180м2 - Икша
- 190 м2 - Андроник
- 320м2 - Дания
- 210 м2 - Рейкьявик
- 230м2 - Казань
- 240 м2 - Счастье
- 245 м2 - Родос
- 250 м2 - Фарес
- 260м2 - Мир
- 275 м2 - Урбан
- 280м2 - Ленинград
- 280 м2 - Элегант
- 290 м2 - Коралл
- 300 м2 - Адамант
- 320м2 - Рока
- 325м2 - Маэстро
- 100м2 - Алтын



