Дом "Сибирь" - 285м2
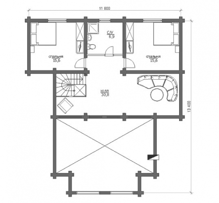
Планировки этажей:
!Возможна перепланировка и изменение габаритов этого дома
Оставляйте заявку на получение подробной сметы:
WhatsApp: +7 937 777 11 10, тел. +7 925 072 49 46
- Дом "Сибирь" представлен в варианте оцилиндрованного бревна из сосны диаметром 240мм.
- Общая площадь дома - 285м2.
Стоимость строительства первого этапа:
| Из бруса 150х150мм | |
| Ручная рубка Эконом, диаметр 22-26см подробнее | |
| Из оцилиндрованного бревна, диаметр 22см подробнее | |
| Ручная рубка Премиум, диаметр 30-90см подробнее |
* Вы можете рассчитать стоимость строительства в других диаметрах бревна, воспользовавшись калькулятором (внизу страницы).
Что такое "первый этап строительства":
- производство дома;
- доставка в адрес сборки;
- монтаж конструкции стен и конструкции балок и перекрытий;
- устройство черновых полов;
- монтаж стропильной системы с устройством обрешетки и временной кровли.
ВАЖНО! При заказе этого дома из бревна d>260мм
БЕСЕДКА В ПОДАРОК!

Посчитайте цену вашего дома!
Коробка
Площадь дома, м2Технология обработки бревна
Диаметр бревна
Порода дерева
Фундамент
Тип фундаментаРасчеты применимы для двухэтажных строений общей площадью от 100 м2 и имеют погрешность 10%.
В расчетах фундамента используется постоянное сечение ростверка 0,8 м x 0,4 м; толщина плиты 0,15 м.
Цена вашего дома
Стоимость коробки: Стоимость фундамента: Общая стоимость:Подразделы
- Баня Валенсия - 30 м2
- Баня Волга - 38 м2
- Баня Владимирская - 55м2
- Баня Спартак - 75м2
- Баня Аист - 78 м2
- Баня Маяк - 85м2
- Баня "Север" - 95м2
- Баня Тайга - 130 м2
- Баня Голиаф - 200 м2
- Баня Иордан - 220 м2
- 60 м2 - Ольга (1 этаж)
- 65 м2 - Пирогово (1 этаж)
- 105 м2 - Простой
- 110 м2 - Ванкувер
- 124 м2 - Мастер (1 этаж)
- 125 м2 - Компакт
- 142м2 - Свежесть
- 155 м2 - Семейный
- 160 м2 - Друг
- 165м2 - Серебро
- 168 м2 - Москва
- 169м2 - Услада
- 170 м2 - Log House
- 170м2 - Post&Beam "Агуардьенте"
- 170м2 - Post&Beam "Карельский"
- 170 м2 - Ладья
- 170м2 - Сильвия
- 170 м2 - Татарский
- 180 м2 - Вятка
- 184 м2 - Финляндия
- 187 м2 - Праздник
- 188 м2 - Виктория
- 198 м2 - Деревянный
- 200м2 - Алал
- 203м2 - Дивный
- 204м2 - Восток
- 210 м2 - Ева
- 210м2 - Титан
- 215м2 - Рафаэль
- 216м2 - Рандеву
- 220м2 - Самсон
- 230м2 - Соломон
- 230м2 - Энтузиаст
- 232 м2 - Интеллигент
- 235м2 - Еликонида (1 этаж)
- 235 м2 - Нуар
- 240м2 - Дельфин
- 240 м2 - Шале
- 242 м2 - Солнечный
- 246м2 - Сицилия
- 250м2 - Закхей
- 255 м2 - Из лафета
- 260м2 - Вишня
- 260м2 - Дукьеро
- 260 м2 - Одесса
- 268м2 - Крым
- 268м2 - Чикаго
- 276м2 - Купец
- 278м2 - Ревизор
- 285 м2 - Сибирь
- 290м2 - Бигдёй
- 295 м2 - Истра
- 300м2 - Королевский
- 308м2 - Цезарь
- 310 м2 - Дикий
- 310 м2 - Кедр
- 330м2 - Рыцарский
- 333м2 - Чертоги
- 335м2 - Малахит
- 340м2 - Алтай
- 345м2 - Фантастика
- 346м2 - Хоромина
- 350м2 - Парадокс
- 384 м2 - Кантри
- 390м2 - Эталон
- 400м2 - Свобода
- 478м2 - Этруск
- 480м2 - Дельфийский
- 528 м2 - Терем
- 555м2 - Именье
- 600м2 - Русский
- 600м2 - Секвойя
- 1250м2 - Галактика



